南城市知念 チネンブルー

3億2,000万円

沖縄県南城市知念字知念1108-6

沖縄都市モノレール「赤嶺」駅徒歩99分

価格
3億2,000万円
間取り/建物面積
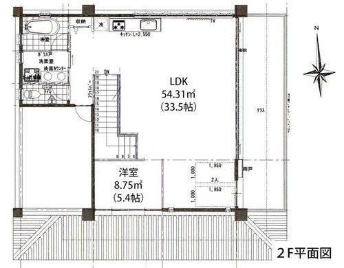
3LDK/192.07㎡
所在地
沖縄県南城市知念字知念1108-6
築年
2020年4月(築6年)
駐車
交通

沖縄都市モノレール赤嶺」駅 徒歩99分

南城市知念 チネンブルーの基本情報

物件名
南城市知念 チネンブルー
価格
3億2,000万円
建物面積
192.07㎡
土地面積
793.45坪(2623.00㎡)
築年月
2020年4月(築6年)
総戸数
-
所在地
沖縄県南城市知念字知念1108-6
交通

沖縄都市モノレール赤嶺」駅 徒歩99分

南城市知念 チネンブルーの詳細情報

設備条件
設備(その他)
    -
駐車場/月額
無/-
土地権利
所有権
国土法届出
不要
用途地域
無指定
取引態様
仲介
引渡し
相談

南城市知念 チネンブルーで募集中の物件

  1. 58.10坪 (192.07㎡)

    32,000万円(550.77万円/坪)

よく見られている物件

  1. 那覇市首里末吉町2丁目

    6LDK (154.77㎡)

    6,380万円

  2. 宜野湾市大山3丁目

    2LDK (133.50㎡)

    13,500万円

  3. 糸満市潮崎町3丁目

    4LDK (107.92㎡)

    4,980万円

  4. 中頭郡読谷村字長浜

    3LDK (158.20㎡)

    6,200万円

南城市知念 チネンブルー

お気軽にお問い合わせください

無料お問い合わせ

株式会社サザンアイランドコンサル

098-857-0931

9:00~18:00

(休:年末年始)